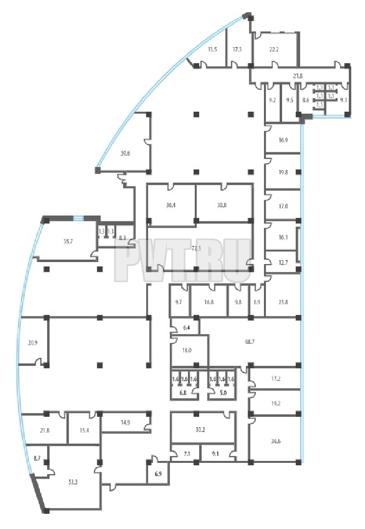
Офис, 1 561,3 м², готово к въезду

Характеристики помещения

Площадь

1 561,3 м²

Парковка

На прилегающей территории

Есть кондиционирование

Да

Есть СКС

Да

1 951 625 ₽/мес.

15 000 ₽/м²/год

Связаться с нами

Коммерческие условия

Налогообложение

НДС

B+

Класс

2013

Год постройки

44 944 м²

Общая площадь

46 000 м²

Полезная площадь

8

Количество этажей

Вы можете записаться на просмотр интересующей вас площади